01_EGEO TİCARET MERKEZİ, Gaziemir-İZMİR, Tolga Kezer - YAPI DALI ÖDÜLLERİ
YAPI DALI ÖDÜLLERİ

01_EGEO TİCARET MERKEZİ, Gaziemir-İZMİR, Tolga Kezer

YAPI DALI ÖDÜLÜ

EGEO TİCARET MERKEZİ

Gaziemir-İZMİR

TOLGA KEZER

“Sanayi merkezlerinin mimari nitelikten uzak bir şekilde yapılaşarak büyüdüğü ülkemizde, sanayi alanlarında mimari başarısı yüksek bir ürün verebilmek değerli bir emsal oluşturmuştur. Tüm yapı alanının temel bir birimin tekrarıyla kurgulanması başarılı görülmüştür. İlk bakışta eşdeğer görülen bu temel birim, cadde tarafında ve sırt sırta depolanan arka grupta farklılaşan iki ayrı çözümle şekillenmiştir. Bu çözümün ortak dilini kuran, yalın zemin ve asma kat planları, kollektif kullanılan bodrum üzerine yükselmiştir. Cadde tarafında birimlerin arsa açısına uygun şekilde kayarak yerleşimi, bu birimlerin tekrarını tekdüzelikten kurtarmaktadır. Cephe boyunca yer alan ışık yırtıklarının çatıya uzanışı inceliklidir. Yapı teknolojisindeki netlik ve mimari dilin sadeliği nedeniyle…”

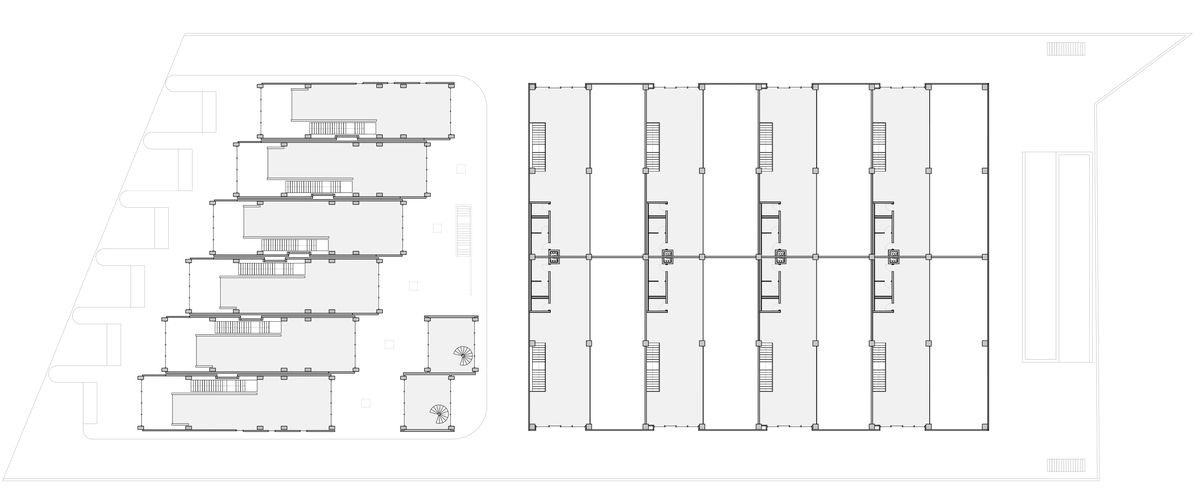
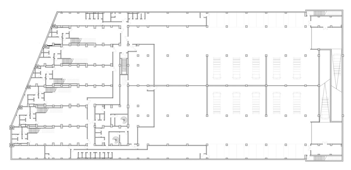
EGEO, İzmir’de Gaziemir sanayi bölgesinin kuzeybatı-güneydoğu doğrultusundaki ana ulaşım aksı olan Ege Caddesi üzerinde, sanayi işlevine tahsis edilmiş 6500 m²’lik bir parselde yer almaktadır. Cadde boyunca sıralanan yapıların tümünün endüstriyel yapılar olduğu ve içlerinde ofis ve sergi salonu işlevleri de barındırmalarına rağmen cadde ve yapılı çevre ile nitelikli bir ilişki kurmadıkları görülmüştür. Bu sorunu çözmek ve kent mekânına katkıda bulunan bir yapı tasarlamak öncelik olarak alınmıştır. Yapılan analizler sonucunda caddeye cephe veren yapıların ticari, arkada kalan birimlerin ise endüstriyel işleve öncelik veren yapılar olması kararı alınmıştır. Aynı inşaat tekniğini kullanarak farklı mimari nitelikler üreten ve dolayısıyla farklı inşaat bütçeleri gerektiren bu ikili kullanım durumunu, nasıl aynı mimari dilin parçaları olarak kurgulayacağımız konusu, projenin temel tasarım amaçlarından biri olarak kabul edilmiştir. Yapıda taşıyıcı elemanlar ve yapı cidarını oluşturan yüzeyler birbirlerini örtüp gizlemeden olağan durumları ile yan yana getirilmişlerdir. Bodrum katta bir bütün olarak ele alınan sistemde birimler; her birimin kendi taşıyıcısı, cephesi ve karkası ile zemin kat ve birinci katlarda tamamen ayrışması sağlanmıştır. Böylece her birim kendine ait bütünsel bir dile sahip olmuştur. Dolayısıyla tasarımın sonuçlanan önemli bir iddiası da endüstriyel inşaat sistemlerini yeniden yorumlayarak hem ekonomik hem de estetik açıdan yüksek nitelikli yapılar üretmektir.

İşler ve Görseller