02_İZQ İNOVASYON MERKEZİ, Konak-İZMİR, Melis Varkal, Gökhan Çelikağ - YAPI DALI ÖDÜLLERİ
YAPI DALI ÖDÜLLERİ

02_İZQ İNOVASYON MERKEZİ, Konak-İZMİR, Melis Varkal, Gökhan Çelikağ

YAPI DALI ÖDÜLÜ

İZQ İNOVASYON MERKEZİ

Konak-İZMİR

MELİS VARKAL, GÖKHAN ÇELİKAĞ

“Dünya’nın kaynaklarını hızla tükettiği ve yapılı çevrenin özellikle metropolitan bölgelerde doygunluğa ulaştığı günümüzde, mevcut bir yapının dönüştürülerek yeni bir kullanım örgütlemesi, mimarlığın başat uğraşlarından biri haline gelmektedir. Yapı, mevcut yapının hem kullanımını hem de silüet içerisindeki kapalılık halini dönüştürerek, açık, etkileşimli ve esnek bir mekân yaratılmasını sağlamaktadır. Zeminde oluşturulan amfiyle başlayarak, yapı kentin bir parçası olarak nitelendirilebilecek bir düşey sokağa evrilmiştir. Bitişik nizam içerisinde yer alan yapının iki komşu duvarında konumlandırılan sirkülasyon ve servis mekanlarının dışında kalan orta alan, zamanla da dönüşebilecek bir boşluk-mekan olarak ele alınmıştır. Denize yönelen cephesindeki geri çekilmeyle elde edilen teraslar ve yeni cephe, bu düşey sokağın manzara ile etkileşimini artırırken, tüm katlarda ışığın ve havanın erişilebilir olmasını sağlamaktadır. Yapının hem zeminde hem de tüm katlarda sürdürdüğü bu istikrarlı açıklık vurgusu, bulunduğu kentin varoluşunu iyi kavrayan ve bunu mekânsallaştırabilen önemli bir öneridir. Tüm bunlara ek olarak yapım dilindeki hassasiyet ve detay üretimindeki başarının da takdir edilmesi nedeniyle…”

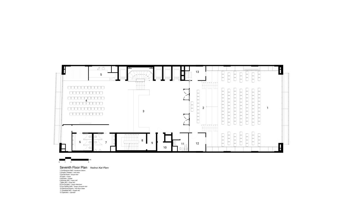
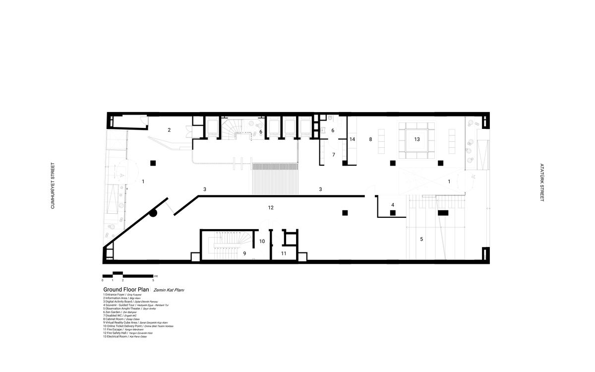
İnovasyon merkezinin tasarımı, bir dizi talep ve senaryo ile yeniden işlevlendirme merceği üzerinden ele alınmıştır. Mevcut yapının konumu ve taşıyıcı sistemi göz önünde bulundurularak yenilikçi çözümlerle yapının ana fikrini destekleyecek revizyonlar yapılmıştır. Bulunduğu kıyı şeridinde süregelen duvar etkisine karşı bir argüman olarak kentliyi ve kullanıcıyı yapının içine çekmeyi hedefler. Bununla birlikte yeni program kurgusuna göre konumlandırılan sarı dikey dolaşım omurgası, kullanıcı etkileşimini ve birlikte yaşamayı teşvik ederek iletişimi destekler ve güçlendirir. Yapının orjinalinde bulunan ve yapı boyunca yükselen Mehmet Tüzün Kızılcan'a ait seramik duvar panosunun korunduğu tasarımda; kinetik bir cephenin, hareketli bir çatının ve zemin katta denize bakan küçük bir amfi alanının kullanılmasıyla, inovasyon merkezinin her katında güneş ışığına, deniz havasına ve nefes kesen manzaralara olanak sağlanmıştır.

Bu yapı, yenilikçilik fikrinin tanıtılması, benimsenmesi ve uygulanması yolunda öncü olmayı hedeflemektedir. Bina içinde bir 'birliktelik' duygusu yaratmak ve kullanıcı etkileşimini arttırmak amacıyla, farklı düzeylerde görsel ve fiziksel geçirgenliğe sahip mekanlar ve 'mikro habitatlar', kapalı ve yarı açık 'nişler' olarak konumlandırılmıştır. Açık plan kurgusu, farklı kullanıcı deneyimlerine, mekansal ihtiyaçlara ve dönüşümlere izin vermektedir.

Yaşam döngüsünün bu yeni evresinde, özenle düzenlenmiş bir metamorfozun aracılığıyla, IzQ İnovasyon Merkezi, çağdaş mimari programın ihtiyaçlarıyla değişmeye devam etmektedir. IzQ; deniz, kullanıcı ve şehir ile kurduğu güçlü diyalog sayesinde ziyaretçilerinin hayatında dönüştürücü bir rol oynamakta. Yeniden işlevlendirme kurgusu, yapıya yeni bir kimlik kazandırmakla beraber yapıyı yeniden kentle ve kentliyle buluşturmaktadır.

İşler ve Görseller