T EVİ, Bodrum-MUĞLA, Cem Sorguç - YAPI DALI SEÇİCİ KURUL ÖZEL ÖDÜLÜ
YAPI DALI SEÇİCİ KURUL ÖZEL ÖDÜLÜ

T EVİ, Bodrum-MUĞLA, Cem Sorguç

YAPI DALI SEÇİCİ KURUL ÖZEL ÖDÜLÜ

T EVİ

Bodrum-MUĞLA

CEM SORGUÇ

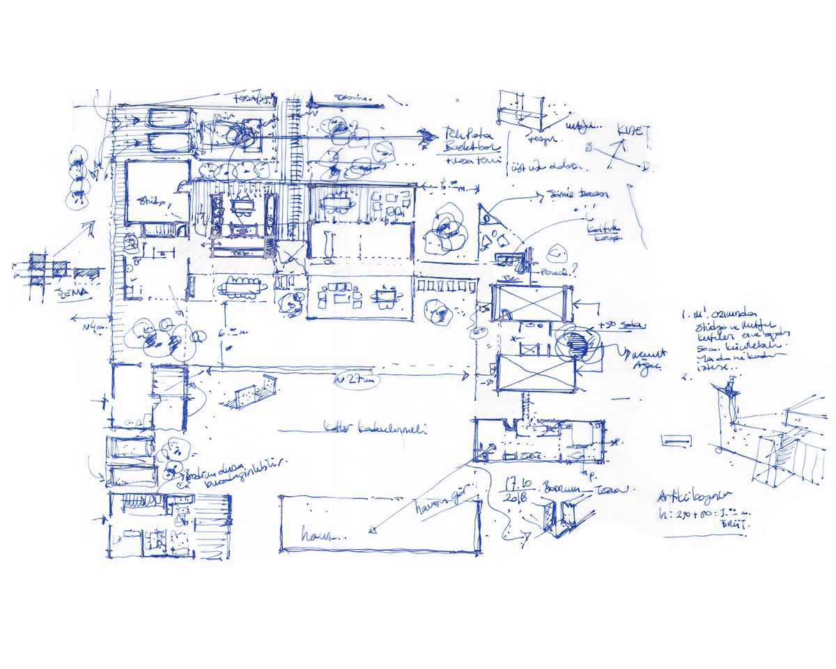
“Tümüyle betona gömülü ve salt rant sağlayıcı sayısız bir örnek tatil evlerine karşın, tüm mekanların parçalanarak içe dönük büyük bir yaşam avlusu etrafında ve tek katlı olarak toparlama çabası başarılı bulunmuştur. Mimarın kendi ifadesi ile “parçalama ayrıştırmadan çok bir araya getirme çabası” olarak ifade edilen yapıda yine avluda yer alan anıtsal nitelikli ağaçların korunması ve  tasarım sürecinin anlatım biçiminin takdir edilmiş olması nedeniyle…”

Bodrum Ortakent’te yaklaşık 2000 m² arazi içerisinde tasarlandı. Birkaç tipten oluşan karakteristik Bodrum evleri tanımlı bir geometri ve ebat taşımaktadır. Ortakent / Müsgebi’nin yerleşim kurgusu ve geleneksel yapılarında bu özellik net olarak görülebilir. Her ne kadar bugünün şartlarında konusu geçen strüktürel ve malzemeye dair kısıtlar söz konusu değilse de mekânların bu dolaylı ebatlanması, gündelik yaşama dair asgari şartları, gündelik konforu oluşturmaktadır. Akdeniz iklimindeki iç yaşam-dış yaşam dengesi hacimler arası ilişkiyi bugün de tarif etmektedir. Avlu, Akdeniz mimarisinin ana mekânlarından biridir. Coğrafyaya özgü, içerisi dışarısı arasındaki muğlak sınır, mekânların organizasyonunda bir girdi olarak kullanılmaya çalışılmıştır. Bu sınırsızlık/belirsizlik fiziki ve sirkülasyonla sınırlanmadan görsel olarak da olabildiğince geçirgen bir ilişkiler silsilesi ortaya çıkarmaya çalışmıştır.

Tasarım sürecinde ilk olarak evi oluşturan mekânlar/odalar müstakil olarak ebatlanmış ve sonrasında ilişkilenmiştir. Parçalama, ayrıştırmadan çok bir araya getirme gayesidir.

İşler ve Görseller